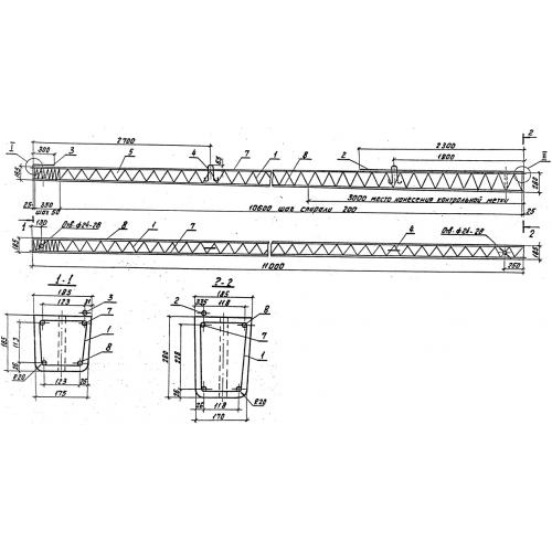
СВ 110 стойка

Чертеж изделия:
Характеристики изделия:
ПараметрЗначение
длина11000 мм
ширина185 мм
высота280 мм
масса1125 кг
нормативный документГОСТ 23613-79

СВ 110  Стойки вибрированные для опор ЛЭП  ГОСТ 23613-79.