Ф2
Характеристики изделия:
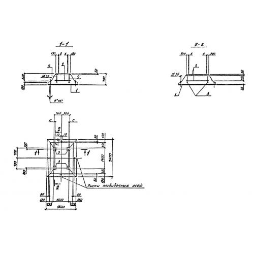
| Параметр | Значение |
|---|---|
| длина | 1800 мм |
| ширина | 2400 мм |
| высота | 700 мм |
| вес | 4830 кг |
| серия | 0-221-84 |
Цена:
Рассчитать стоимостьФ2 Плиты фундаментные по серии 0-221-84.
| Параметр | Значение |
|---|---|
| длина | 1800 мм |
| ширина | 2400 мм |
| высота | 700 мм |
| вес | 4830 кг |
| серия | 0-221-84 |
Ф2 Плиты фундаментные по серии 0-221-84.
