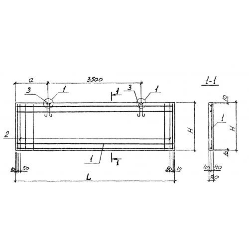
ПГ 49.18 панели перегородки
Характеристики изделия:
| Параметр | Значение |
|---|---|
| длина | 4880 мм |
| ширина | 80 мм |
| высота | 1785 мм |
| масса | 1120 кг |
| нормативный документ | Серия 1.030.9-2 |
Цена:
Рассчитать стоимостьПГ 49.18 Перегородки панельные зданий промышленных и сельскохозяйстыенных предприятий Серия 1.030.9-2.
