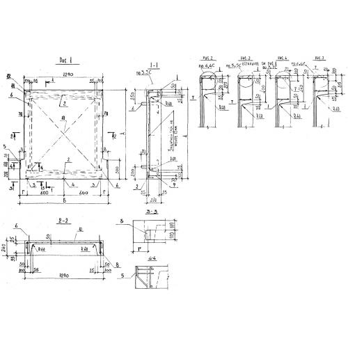
ЛПП 14.13

Чертеж изделия:
Характеристики изделия:
ПараметрЗначение
длина1440 мм
ширина1325 мм
высота240 мм
вес600 кг
серия1.050.1-3

ЛПП 14.13 Лестничные площадки ребристые по серии 1.050.1-3.