В1.3-68.27.12-2.4

Чертеж изделия:
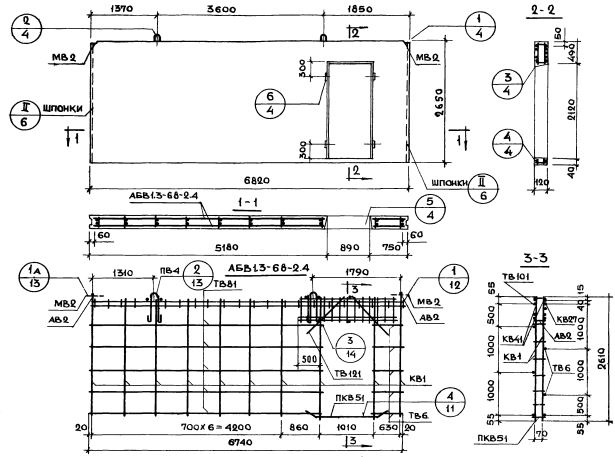
Характеристики изделия:
ПараметрЗначение
длина6820 мм
ширина120 мм
высота2650 мм
масса4840 кг
нормативный документСерия 1.131-1

В1.3-68.27.12-2.4    Внутренние стеновые панели   (Серия 1.131-1).