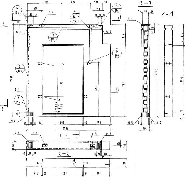
СБВ-25.2.28т-7

Чертеж изделия:
Характеристики изделия:
ПараметрЗначение
Длина2500 мм
Ширина200 мм
Высота2740 мм
Масса2050 мм
Нормативный документСерия 1.134-1

Блоки внутренних  стен  по Серии 1.134-1.

СБВ-25.2.28т-7   Стеновой блок внутренний.