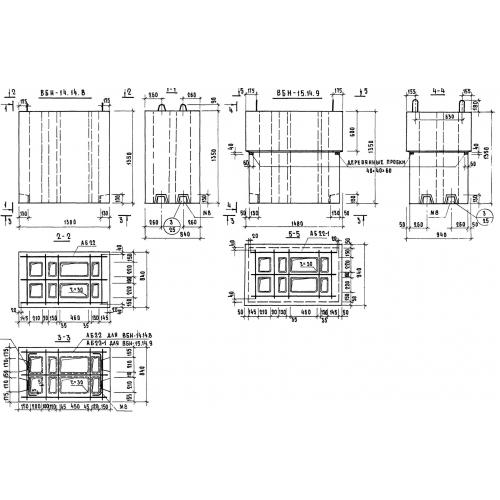
ВБН 14.14.8
Характеристики изделия:
| Параметр | Значение |
|---|---|
| длина | 1380 мм |
| ширина | 840 мм |
| высота | 1350 мм |
| вес | 1440 кг |
| серия | 1.134-3 |
Цена:
Рассчитать стоимостьВБН 14.14.8 Наружные вентиляционные блоки по серии 1.134-3.
| Параметр | Значение |
|---|---|
| длина | 1380 мм |
| ширина | 840 мм |
| высота | 1350 мм |
| вес | 1440 кг |
| серия | 1.134-3 |
ВБН 14.14.8 Наружные вентиляционные блоки по серии 1.134-3.
