ЛП 280

Чертеж изделия:
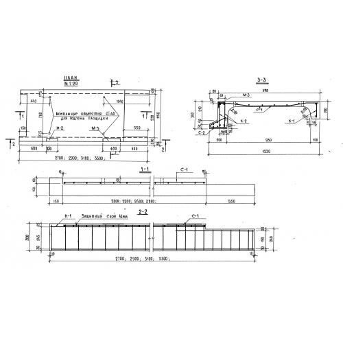
Характеристики изделия:
ПараметрЗначение
длина3100 мм
ширина1150 мм
высота300 мм
вес948 кг
серия1.150 КР-1

ЛП 280 Лестничные площадки по серии 1.150 КР-1.