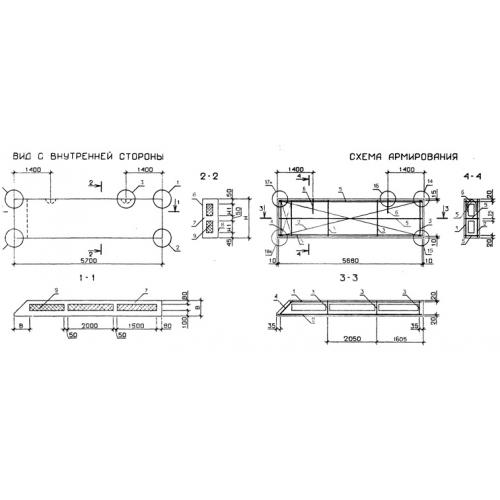
ПСТ 57.15.3.0 панели стеновые

Чертеж изделия:
Характеристики изделия:
ПараметрЗначение
длина5700 мм
ширина300 мм
высота1485 мм
масса3250 кг
нормативный документСерия 1.232.1-7

ПСТ 57.15.3.0  Панели стеновые трехслойные (рядовые для внутренних углов зданий) Серия 1.232.1-7.