СВ 105

Чертеж изделия:
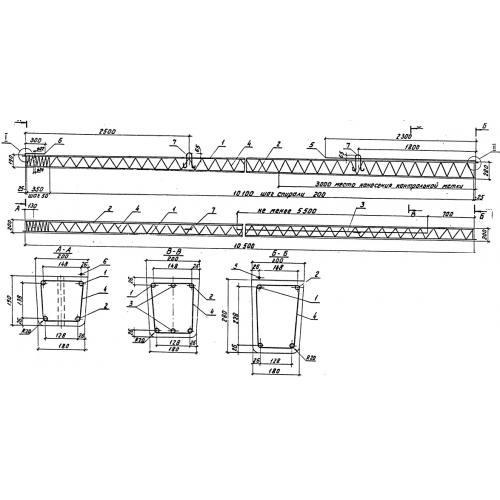
Характеристики изделия:
ПараметрЗначение
длина10500 мм
ширина205 мм
высота280 мм
масса1180 кг
нормативный документСерия 3.407.1-143

СВ 105  Стойки железобетонные Серия 3.407.1-143.