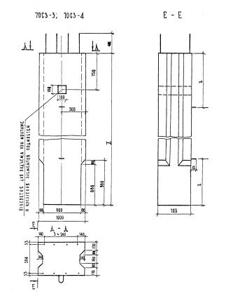
70С3-3

Чертеж изделия:
Характеристики изделия:
ПараметрЗначение
длина3280 мм
ширина1000 мм
высота810 мм
масса4100 кг
нормативный документСерия 3.503-23

70С3-3  Блоки стенок Серия 3.503-23.