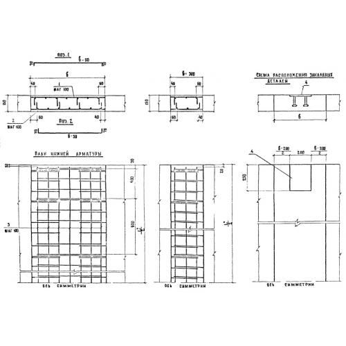
УМС 1200.81 Участки монолитные средние

Чертеж изделия:
Характеристики изделия:
ПараметрЗначение
длина12000 мм
ширина810 мм
высота150 мм
вес3650 кг
серия3.503.1-81

УМС 1200.81 Участки монолитные средние по серии 3.503.1-81.