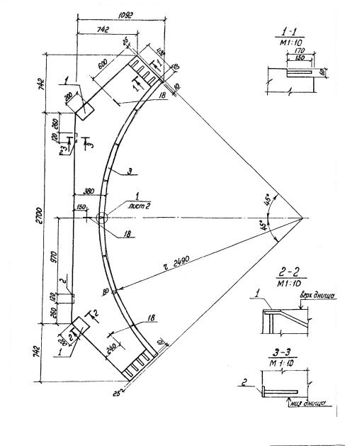
4ДК 6.1

Чертеж изделия:
Характеристики изделия:
ПараметрЗначение
Длина4184 мм
Ширина1092 мм
Высота400 мм
Масса1900 кг
Нормативный документСерия 3.702.1-4

Балка днища криволинейная 4ДК 6.1 по Серии 3.702.1-4.