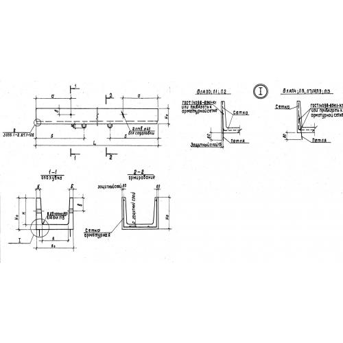
Л 0 лоток

Чертеж изделия:
Характеристики изделия:
ПараметрЗначение
длина5970 мм
ширина330 мм
высота360 мм
масса750 кг
нормативный документСерия 3.900.1-12

Л 0 Лотки теплотрасс по Серии 3.900.1-12.